Омский "Хилтон" подбирается к дороге
18.04.2012 2938
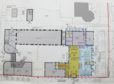
В Омске заказчик строительства многофункционального комплекса с гостиницей Hilton Garden Inn хочет построить объект всего в полуметре от улицы Интернациональная. Компания "Луч" предлагает уменьшить отступ от красной линии до здания на 5,5 метров.
В департаменте архитектуры и градостроительства Омска 17 апреля рассмотрели заявку ООО "Луч" на предоставление разрешения на отклонение от предельных параметров разрешенного строительства. По проекту, компания-собственник земельного участка, расположенного на пересечении улиц Интернациональная и Тарская в Центральном округе, предлагает уменьшить минимальный отступ от красной линии со стороны автодороги с 6 до 0,5 метра.
Речь идет о многофункциональном комплексе с гостиницей Hilton Garden Inn Omsk Center, заказчиком строительства которого выступает ООО "Луч", а инвестором — ЗАО "Основа Холдинг". Он разместится на территории бывшей обувной фабрики, а само историческое здание (сносить его запрещено) окажется во внутреннем дворике комплекса.
Заместитель генерального директора ТПИ "Омскгражданпроект" Лариса Маслова возмутилась: "Получится, что входы будут прямо на тротуаре, а он и так заужен". А президент Союза строителей Омской области Николай Лицкевич поинтересовался, "не зажмут ли аллею строителей" на улице Тарская, со стороны которой обустроят вход в комплекс.
Главный архитектор Омска Анатолий Тиль поспешил успокоить строителя: "Нет, никоим образом", а замглаве проектного института напомнил, что проект рассматривали на градостроительном совете. Правда, затем он поинтересовался у секретаря комиссии, возражал ли против уменьшения минимального отступа от красной линии омский Союз архитекторов и лично его председатель Альберт Каримов, который известен как ярый защитник культурного наследия города. Однако никаких пожеланий они не высказали и г-н Тиль предложил считать публичные слушания по данному вопросу завершенными.
Свой "вердикт" комиссия вынесет в ближайшее время.
Подписывайтесь на новости недвижимости в Омске от omskrielt.com во ВКонтакте
